Eine Microsite des Stifterverbandes All Pages

Eine Microsite des Stifterverbandes

Wissenschaftszentrum Bonn (Foto: Frank Homann)

Seminar­raum 153

Seminarraum für kleine Tagungen und Gruppenarbeiten.
 

Der Seminarraum 153 lädt auf seinen 166 m² Grundfläche zu Tagungen, Gruppenarbeiten und privaten Besprechungen ein. Im hinteren Bereich befindet sich eine Sofaecke und eine kleine Terrasse.

Foto: Frank Homann
Reihenbestuhlung
Foto: Frank Homann
Reihenbestuhlung mit Tischen
Foto: Frank Homann
Bestuhlung in U-Form
Foto: Frank Homann
Pausenbereich
Foto: Frank Homann
Pausenbereich

Bestuhlungspläne

Bestuhlungsplan im U
Bestuhlungsplan für den Seminarraum 153 im U (22 Pers.)
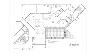
Bestuhlungsplan parlamentarisch
Bestuhlungsplan für den Seminarraum 153 parlamentarisch (30 Pers.)
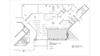
Bestuhlungsplan Reihenbestuhlung
Bestuhlungsplan für den Seminarraum 153 in Stuhlreihen (75 Pers.)

Kontakt

Veranstaltungsmanagement

Veranstaltungsmanagement

Wissenschaftszentrum Bonn
Ahrstr. 45
53175 Bonn

T 0228 302-219
F 0228 302-270

tagungen(at)wzbonn.de

E-Mail senden